
好消息!
大兴新城核心区
这处居住用地
总平面图公布
↓↓↓
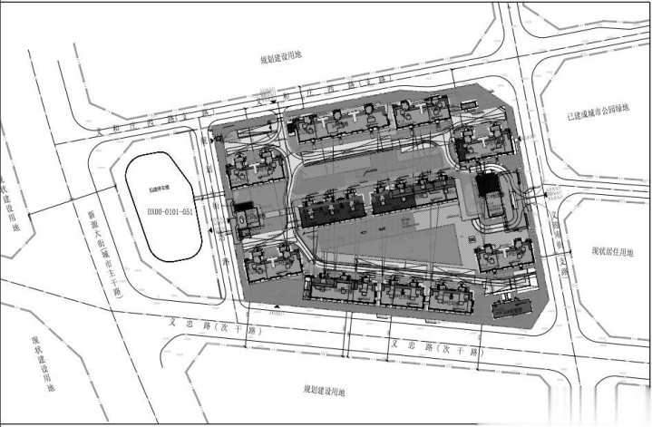
关于大兴新城核心区
DX00-0101-052地块
R2二类居住用地项目
规划设计方案公示反馈意见
采信情况和总平面图公布的通告

2025年10月15日-2025年10月23日,市规划自然资源委大兴分局对大兴新城核心区DX00-0101-052地块R2二类居住用地项目规划设计方案进行了现场和网上公示,公示期7个工作日,公示期间未收到反馈意见。按照相关法律法规要求,现将上述建设工程设计方案总平面图予以公布,公布期限自即日起至全部建设项目建成后通过规划核验之日止。本项目各项技术经济指标以建设工程规划许可证最终审批为准。
特此通告。





天宇优配提示:文章来自网络,不代表本站观点。